Hammarkvarn Unit är en enkel och högeffektiv förmalningslösning. En UNIT hammarkvarn integrerar alla funktioner omkring en förmalningsprocess i en enda anläggning; hammar-kvarn, dysfilter, fläkt samt underbehållarte inkl. tömnings-skruv. Dessa är dimensionerade och konstruerade för att fungera tillsammans i en anläggning. Förmalningsprocessen består av att produkten matas till kvarnens inlopp via transportband, skruv eller liknande utrustning som kan kapacitetsregleras till exempel med frekvensomvandlare. När produkten faller ned i mal-kammaren förmals den genom slagornas rotation. Utbytbara slitstarka malbrosegment i den övre delen av förmalningskammaren förhindrar produkten från onödig rotation och ökar förmalningseffektiviteten. Sållens hålstorlek bestämmer förmalningsgraden på produkten.
EUB hammarkvarnserien innehåller ett antal nya funktioner såsom:
- Cirkulär malbrodesign av förmalningskammaren med malbrsektioner
- Vändbar rotor för att kasta om rotationsriktningen hos rotorn
- Hydrauliskt styrt system för öppning/stängning av sållucka
- Servicelucka för snabb åtkomst till slagor
- Snabbt byte av slagor
De olika funktionerna ger sammantaget en anläggning som minimerar stopptiderna avsevärt, är servicevänligt och arbetar med hög effektivitet. Kvarnens höga perifierihastighet (110 m/sek) kombinerat med möjligheten att justera malbrosektionen betyder marknadens mest effektiva förmalningsanläggning.
Självrensande dysfilter typ EUROFlow med runda teflonbelagda filterpåsar gör anläggningen dammfri. Under drift rensas filterpåsarna med lufttryck från en lufttank, justerade med en timer. Komplett med elektrisk kontrollpanel 24 -230V AC.
En fläkt är monterad på filtret för luftsug och kylning. Den färdigförmalda produkten sugs ut från formalningskammaren igenom sållet varvid kapaciteten, kylningen ökar och håller anläggningen dammfri. V-formad underbehållare inkl. tömningsskruv med direktkopplad snäckväxelmotor. Kompaktor i tömningsskruvens utlopp håller vakuum inne i anläggningen.
Sålltyper & Storlekar
- Plåtsåll Ø0,350mm upp till Ø12,0 mm
- Trådsåll #1,0mm upp till #10,0 mm
- Spaltsåll //0,050mm upp till 0,300 mm (Special)
Artikelnummer & Tillbehör:
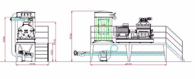
- HAMMARKVARN EUB-4000 D UNIT Inloppsfördelare och kvarnmotor. Underbehållare med V-formad Ø200 tömningsskruv med direktkopplad snäckväxelmotor udløbskompaktor.
Självrensande dysfilter EUROFLOW Ø800 & fläkt 3,0 KW. Inkl. maskinplattform med trappa och räcke.
Specifikationer:
Motor: 30-90 kW
Sållyta: 0,55 m²
Slagor: 96 st
Ljudnivå: 95 db(A)
Dysfilter Ø800
Filterpåsar: 14 st
Filteryta: 10 m²
Filterstyrning: 24V eller 220V
Fläkt
Fläktmotor: 3,0 kW
Tömningsskruv:
Snäckväxel: NMRV 090
Snäckväxelmotor: 1,1 kW






